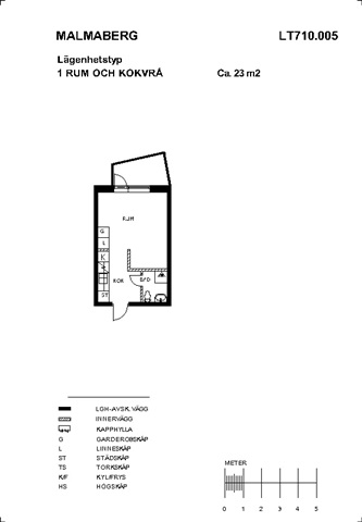
säbygatan, 23 m2, 1 rooms, 3,413 kr






säbygatan.
Rooms: 1Area m2: 23
Rent. 3,413 kr
Zip code: 72341
City: Västerås
- Lift
- Rent paid in advance: Contact owner
- Deposit: Contact owner
- Payment on account: Contact owner
- Vacant: Immediately
- Placed:
- Might be allowed - ask landlord
- Case number: 522388